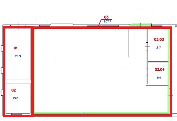
Noliktavas telpas 238.8 m²

Iznomājam noliktavas telpas Biznesa parka ABAVA teritorijā.

✅ Telpu apraksts:
Noliktavas telpas platība - 238.8 m².
Noliktavas telpas ir apsildāmas.
Telpu griestu augstums 4 metri.
Elektrības pieslēgums, ar iespēju pieslēgt nepieciešamo jaudas apmēru.
Šobrīd telpās nav ūdens pieslēguma. Pēc klienta nepieciešamības ir iespēja pievienot ūdens pieslēgumu.
Noliktavas telpām nav rampas, izkraušana / iekraušana zemes līmenī.

🏭 Priekšrocības:
Telpas ir piemērotas kravu apstrādei, ražošanai, glabāšanai.
Noliktavai ir paceļamie vārti ar durvīm.
Ērta piekļuve ar kravas transportu.
Noliktavas telpas pieejamas 24/7.

📍 Atrašanās vieta: Biznesa parks ABAVA, Mellužu iela 13-7, Rīga.

💶 Nomas maksa: 4.00 EUR/m² + PVN.
Apsaimniekošanas maksa: 1.00 EUR/m² + PVN.
Papildus maksājumi par elektroenerģiju.

📞 Lai saņemtu papildu informāciju vai vienotos par telpu apskati, lūdzu, sazinieties:
Tālr.: +371 67403950
E-pasts: info@abava.lv